風俗営業の手続きでお困りではありませんか?
![]() |
![]() |
スナック、クラブ、バー、キャバクラ、ガールズバー、ホストクラブ、ダーツバー、ゴルフバー、スポーツバー、シューティングバー、特定遊興飲食店、麻雀店、ゲームセンターなど、福岡・博多エリア(中洲・天神西通り・親不孝通り・西中洲・春吉・博多駅周辺など)の風俗営業関連の許可申請、届出等の手続き代行承ります。
お店周辺の調査に始まり、店舗測量から申請図面及び書類作成、管轄警察署窓口への申請代行、実地検査立会い、許可証受領まで、すべて万全を期してお引き受けいたします。
面倒なことはすべて私にお任せください
|
業務のご案内
風俗営業許可(1号営業許可)
|
深夜酒類提供飲食店営業開始届出
|
その他風営適正化法関連手続き
|
費用の目安
業務報酬額
風俗営業許可 1号営業社交飲食店 | 180,000円(消費税別) *キャバクラ、スナック、ホストクラブ等、旧2号営業の業態のお店 |
深夜酒類提供飲食店 営業開始届出① | 100,000円(消費税別) *主にカウンターでウイスキーやカクテル等を提供する深夜営業を行うお店 |
| 深夜酒類提供飲食店 営業開始届出② | 120,000円(消費税別) *ガールズバー、ホストクラブ等類似の業態の深夜酒類提供飲食店 |
相談料 | 5,000円(消費税別) *後日正式に業務をご依頼いただいた場合は契約金額から差し引きます。 |
その他必要な費用
警察への申請手数料24,000円(深夜酒類提供飲食店は不要)、飲食店営業許可申請手数料16,000円、その他住民票や登記簿謄本、用途地域証明書など役所から取り寄せる書類等の実費が必要になります。
風営関係業務のサポートについて
立地調査(用途地域・保護対象施設の存在)
風俗営業許可の申請にあたり、営業所を開設しようとする場所が法令で定める場所的要件を満たしているかどうかを確認しておかなければなりません。
特に「保護対象施設」との距離制限は非常にデリケートな問題であり、中洲地区などは別として、出店予定地の近隣に地図上からは読み取れない学校施設、保育所、診療所等が存在することも考えられます。
そこで当事務所では、お店周辺を実際に歩いて調査することによりそれら隠れた保護対象施設の有無を調べ上げ、必要あれば、監督官庁である教育委員会、福祉事務所、保健福祉センター等にまで確認するなど万全の調査を行います。
![]() |
![]() |
店舗測量
申請図面を作成する前に店舗内部の測量をします。
風営の申請図面は、建築設計図面のようなこれから建物を建てるためのそれとは違い、既に完成した店舗の現況を表すものです。すなわち事実と異なってはならず、より正確な求積が必要で、そのため店舗内各所の寸法を細かく取った上で、テーブルやイスなどの家具類の形状やレイアウト、照明・音響設備等の種類、数量、配置などを確認します。
測量には、巻き尺などの一般測量機器のほかレーザー距離計(写真左)を使用し、より精度の高い測量を行うほか、照度基準を確実にするため、照度計(写真右)による営業所内の照度の測定を行います。
万全を期すため、これらの調査には最低2日間の日程をいただくとともに、必要に応じ、外形図ができた段階で管轄警察署に出向き、客席面積の取り方等につき事前協議をします。
![]() |
![]() |
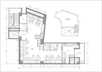
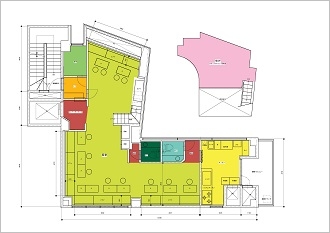
申請図面作成
風俗営業許可の申請には、「平面図」「求積図」「照明・音響図」「備品図」等の図面が必要です。
これら図面は、単に見栄えがいいだけでなく、申請する店舗が法定の設備・構造の基準を満たしていることを明らかにするものでなければならず、また警察署の担当者にもそのことについて有無を言わせないものであることが必要です。
さらには、風俗環境浄化協会の実地検査においてこれら申請用図面を基に現地との差異がチェックされることに鑑みるなら、分かりやすさというものも要求されます。
当事務所では、前述の精度の高い測量に加え、CADシステムを使用し、申請を通すことを第一に考えた高品質かつ正確な申請図面を迅速に作成します。下記をご覧ください。これらこそがプロが作る風営の申請図面というものです。
<申請図面作成例>
![]() |
![]() |
![]() |
![]() |
![]() |
![]() |
福岡・博多の風俗営業許可申請 行政書士高松事務所 〒810-0024 福岡市中央区桜坂3丁目12番92-208号 電話番号092-406-9676 | お気軽にお問い合わせください 平日9:00~18:00(土曜12:00) お急ぎのときは090-8830-2060 |





















